
A full measured building survey was carried out, covering all internal spaces and structural elements. Each room, circulation area, and feature was carefully measured and modelled to ensure dimensional accuracy throughout the entire property. This formed the foundation for a reliable and cohesive Revit model suitable for architectural and design development.
The roof survey presented notable challenges due to restricted on-site access. To address this, the team adopted an alternative strategy using detailed site photography and high-resolution satellite imagery. This approach enabled the accurate modelling of all slopes, ridges, and roof components, ensuring the final representation remained consistent with the building’s real-world geometry despite access limitations.
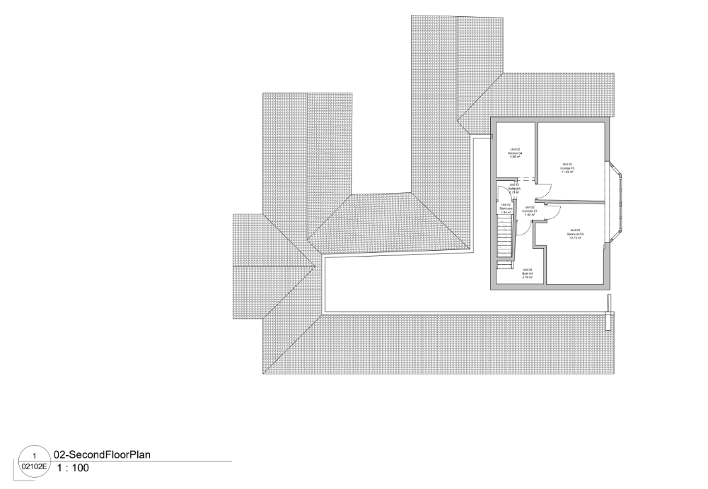
The internal configuration of the property featured a number of intricate spaces that required careful planning to document within the project’s time constraints. Each interior area was captured thoroughly to provide an accurate and dependable layout suitable for refurbishment, redesign, or planning applications.
The final outputs included:
• A fully detailed Revit model
• A complete drawing package
• PDF and DWG deliverables for seamless integration into the client’s design workflow
These deliverables provided the client with a precise and practical base model to support future architectural and planning stages.
Survey2Plan provides precise, tech-driven surveying solutions tailored to meet unique project needs with efficiency and expertise.
0161 531 6641
(Prefer a quick chat? Call us now!)
info@survey2plan.co.uk
(Send us an email and we’ll get back to you.)
Bartle House Oxford Court, Manchester M2 3WQ
Privacy Policy | Copyright © 2026 Survey2Plan.