
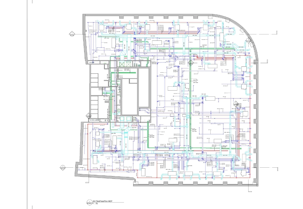
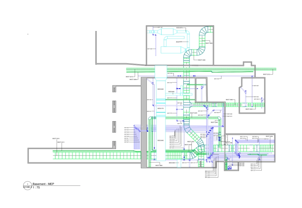
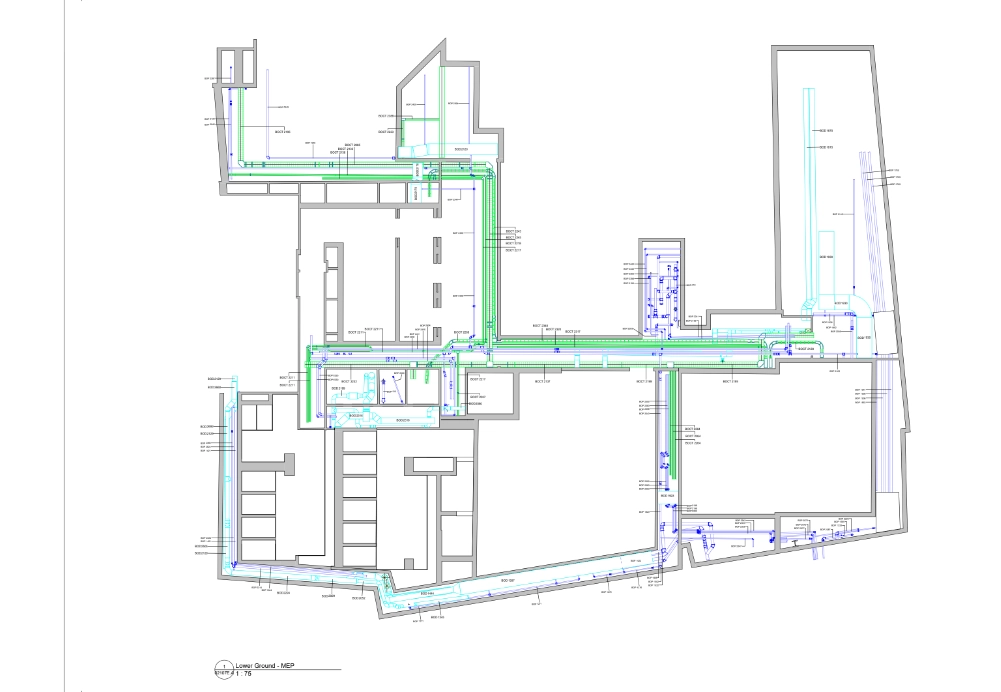
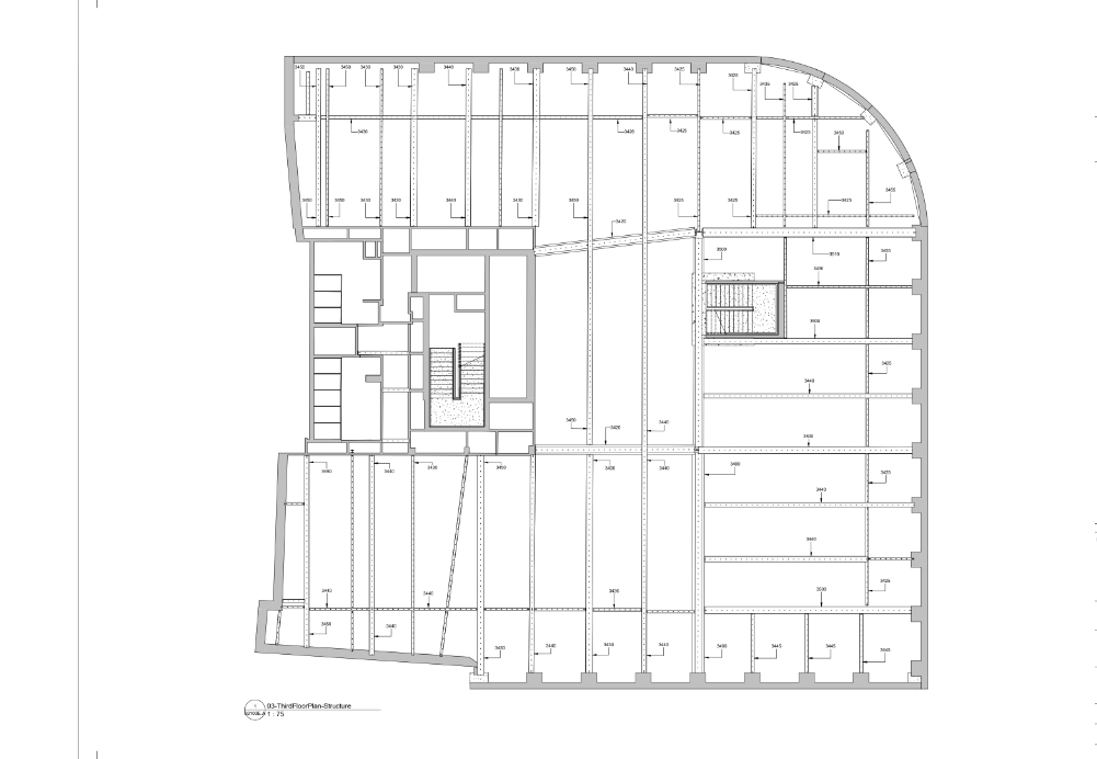
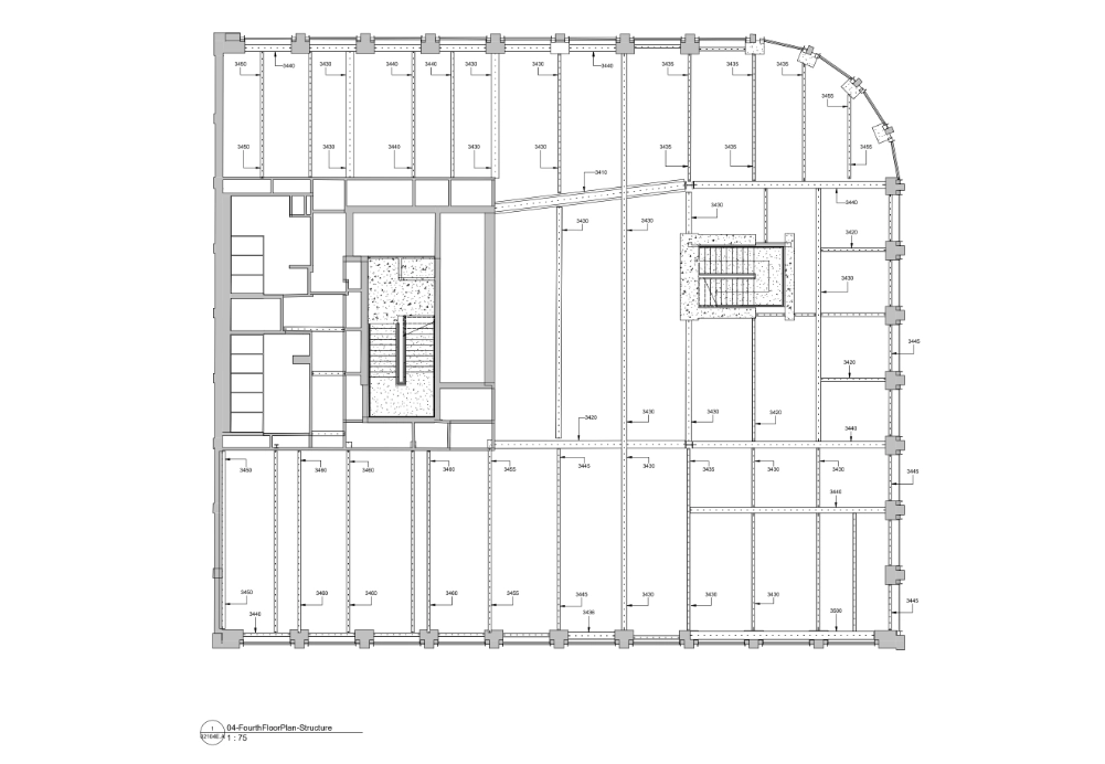
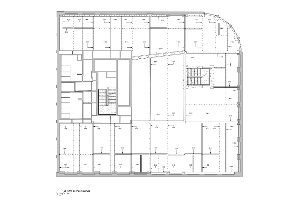
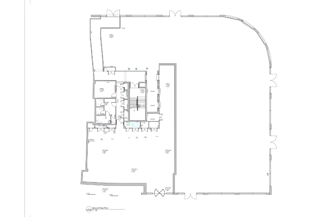
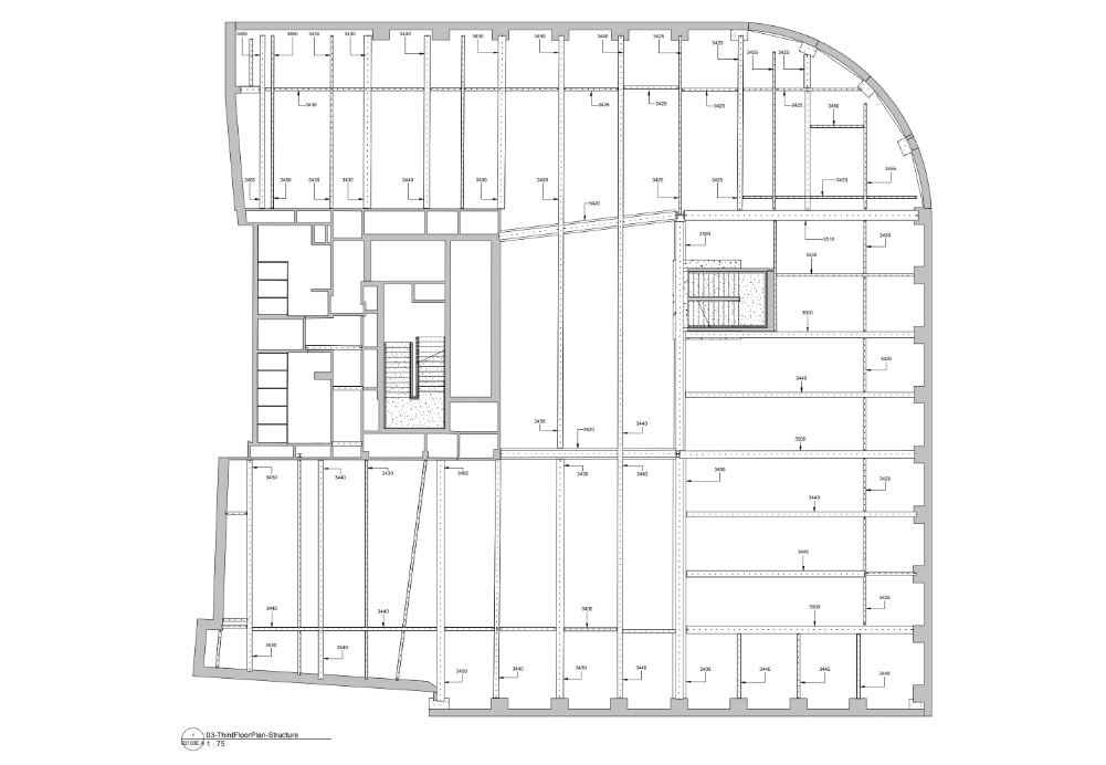
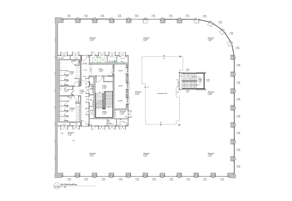
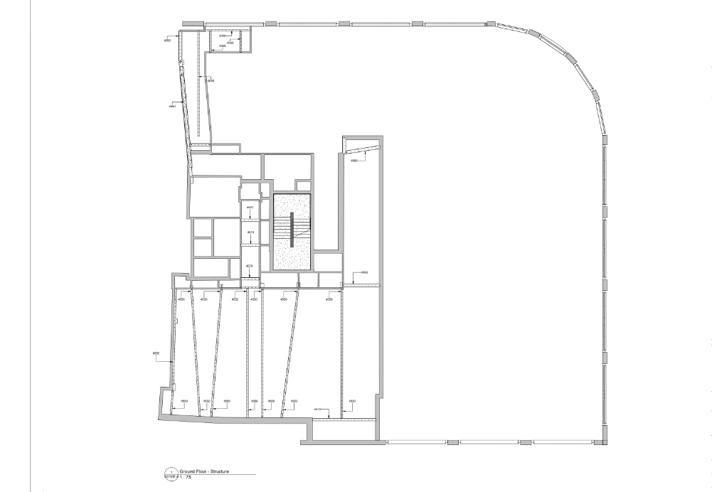
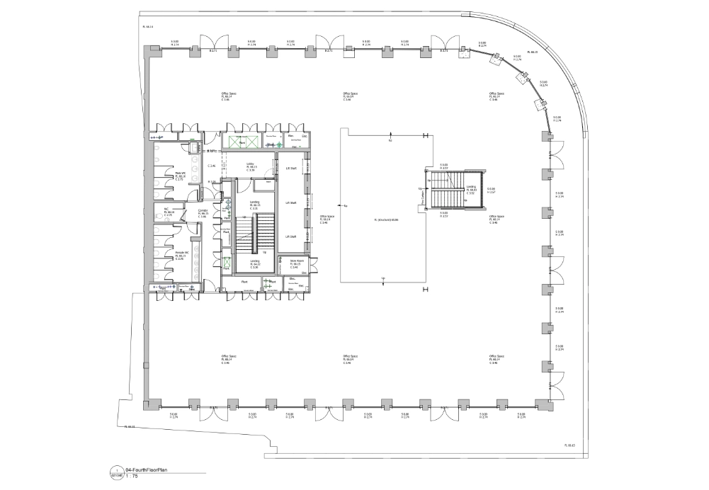
The survey scope included the full documentation of ceiling structures, MEP systems, and structural ceiling components across multiple floors. The client required precise ceiling height mapping to guide renovation design, making accuracy and consistency essential. Detailed ceiling layouts and service routes were modelled carefully to provide a reliable foundation for future design coordination.
The building’s size and multi-floor complexity required the management of a substantial point cloud dataset within a challenging timeline, the project was delivered 11 days earlier than originally scheduled. One of the most technically demanding tasks was modelling small fire pipes. These elements were difficult to extract due to point cloud noise, requiring careful processing, meticulous checking, and repeated verification to ensure accuracy.
The final deliverables provided to TSK Group included:
This comprehensive dataset equipped the client with accurate, reliable ceiling and services information to support informed renovation planning and interior design development.
Survey2Plan provides precise, tech-driven surveying solutions tailored to meet unique project needs with efficiency and expertise.
0161 531 6641
(Prefer a quick chat? Call us now!)
info@survey2plan.co.uk
(Send us an email and we’ll get back to you.)
Bartle House Oxford Court, Manchester M2 3WQ
Privacy Policy | Copyright © 2026 Survey2Plan.