
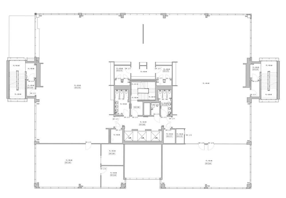
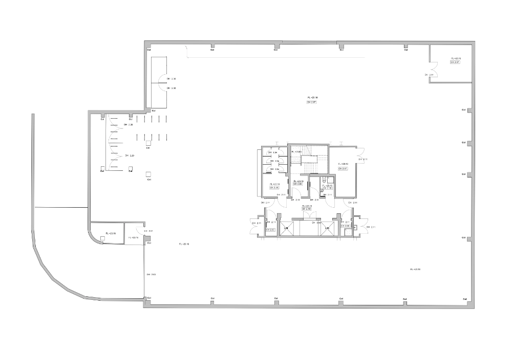
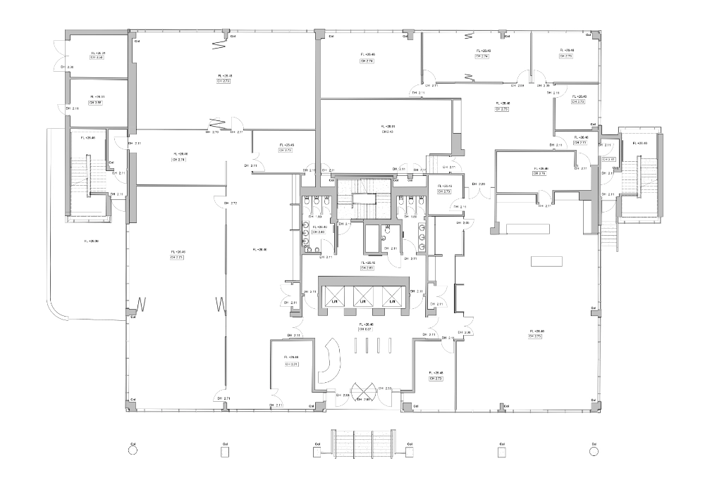
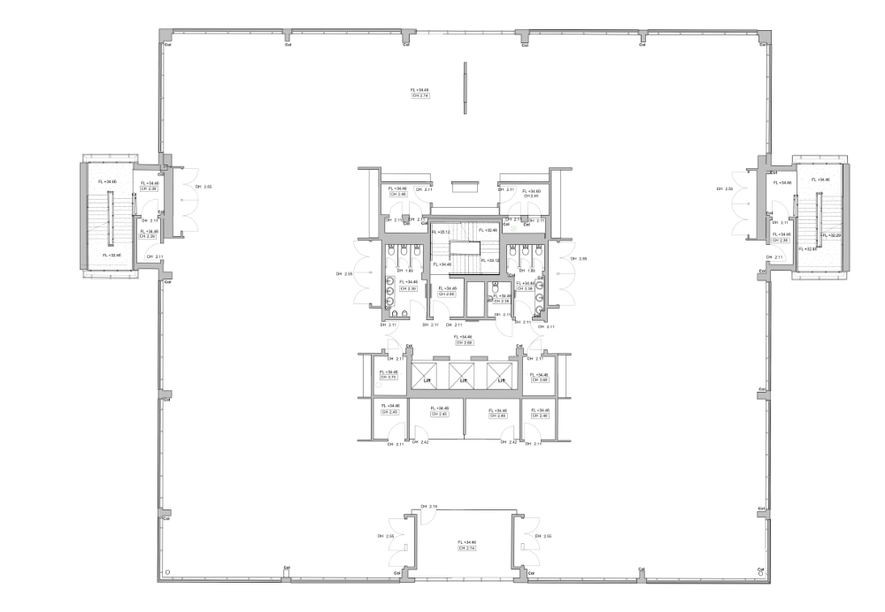
The survey included detailed floor plans, elevations, and a fully developed 3D Revit model. Particular attention was given to documenting all external facade elements, curtain wall systems, and structural features. Core architectural and structural components were carefully captured to ensure the model accurately reflected the existing conditions. Basic MEP routes, HVAC systems, and plant locations were also recorded to provide a complete spatial understanding of the building.
A significant portion of the work focused on modelling the building’s core. Walls, staircases, lifts, and other internal structural elements were modelled in detail to support seamless coordination with the client’s design processes. This careful representation ensured that critical vertical circulation and service areas were accurately incorporated within the final model.
The deliverables included:
These deliverables provided the client with highly accurate and dependable data for design development, technical analysis, and informed decision-making.
Survey2Plan provides precise, tech-driven surveying solutions tailored to meet unique project needs with efficiency and expertise.
0161 531 6641
(Prefer a quick chat? Call us now!)
info@survey2plan.co.uk
(Send us an email and we’ll get back to you.)
Bartle House Oxford Court, Manchester M2 3WQ
Privacy Policy | Copyright © 2026 Survey2Plan.