
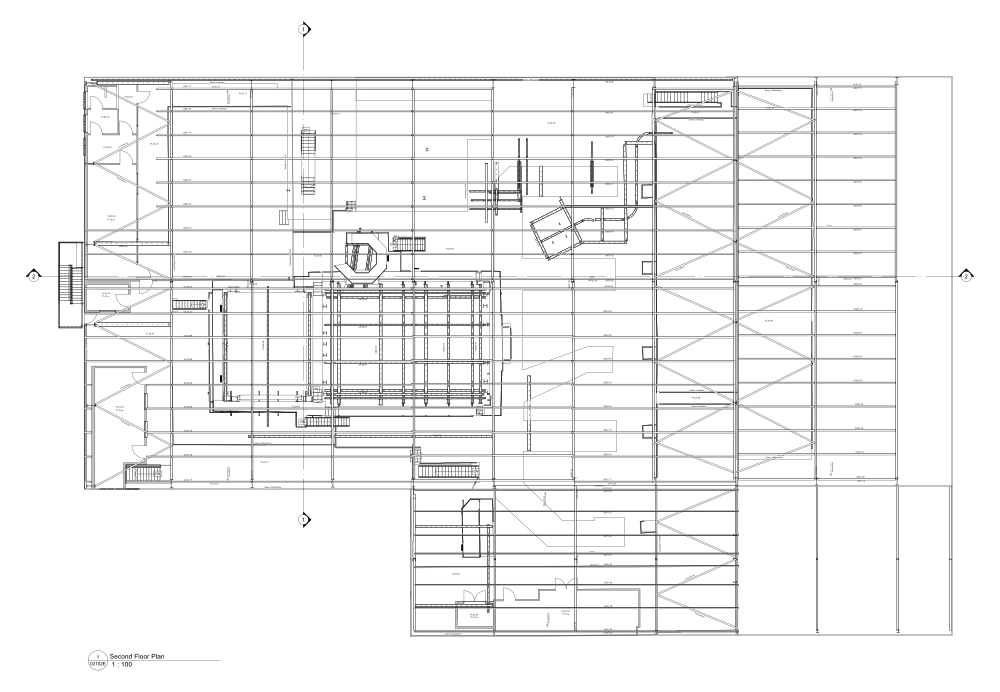
Using point cloud data as the basis, the team modelled all major structural components, including walls, beams, columns, joists, purlins, staircases, and roof decks. The scale of the site required careful coordination to maintain consistency across thousands of interconnected elements. Each structural member was modelled to reflect its exact position, alignment, and condition, forming a reliable digital representation of the fire-affected facility.
One of the key challenges was ensuring the complete and accurate capture of every beam, joist, and brace within the vast structural network. Any omission could impact the integrity of the model and affect subsequent engineering analysis. To mitigate this, the team implemented rigorous quality-control checkpoints throughout the workflow, enabling early identification of gaps or misalignments. Modular modelling techniques were adopted to streamline production and maintain accuracy across repetitive structural zones.
Despite the complexity and size of the facility, the project was completed within an accelerated 21-day timeframe.
This rapid turnaround was achieved through disciplined workflow management, continuous QA/QC processes, and effective coordination across the modelling team. The result was a fully detailed, survey-grade BIM model that met all client requirements and established a new benchmark for large-scale industrial Scan to BIM projects.
Survey2Plan provides precise, tech-driven surveying solutions tailored to meet unique project needs with efficiency and expertise.
0161 531 6641
(Prefer a quick chat? Call us now!)
info@survey2plan.co.uk
(Send us an email and we’ll get back to you.)
Bartle House Oxford Court, Manchester M2 3WQ
Privacy Policy | Copyright © 2026 Survey2Plan.