
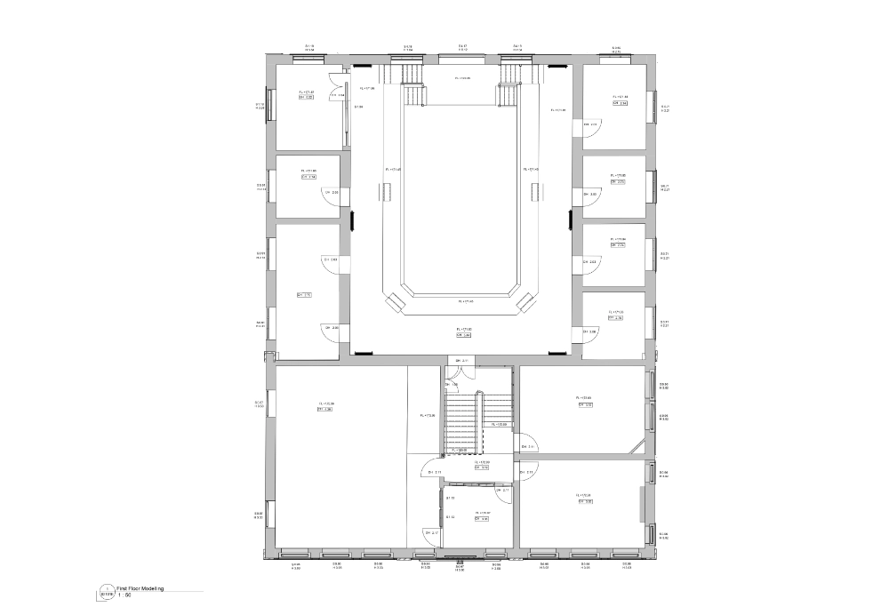
A comprehensive 3D laser scan was conducted, covering all internal and external areas of the church. The building includes a range of intricate architectural features, exposed timber beams, ornate decorative elements, and complex window geometries, all of which were carefully documented. These details were modelled with precision in Revit to ensure the client received a faithful digital representation of the existing building fabric.
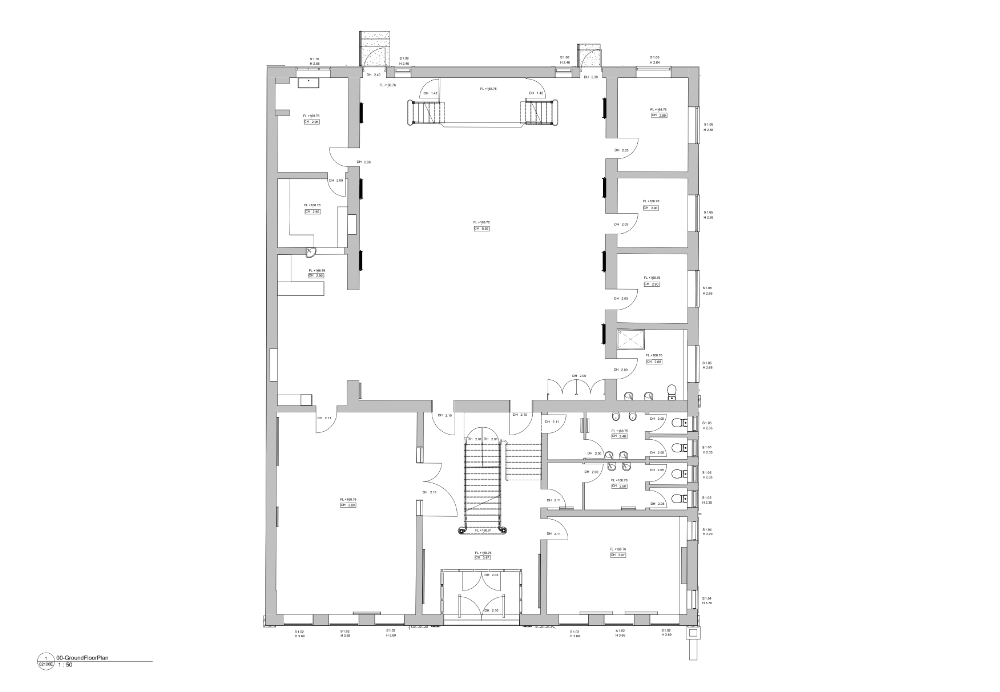
The survey extended to the roof structure, where the client required full documentation of drainage channels, rainwater downpipes, and associated roof elements. Given the scale and complexity of the roof, the team adopted a coordinated scanning methodology to ensure each feature was captured and accurately integrated into the BIM model.
Several detailed architectural and structural components posed modelling challenges due to their fine geometry and restricted accessibility within the scan. Despite these limitations, all relevant elements were captured and modelled to the highest achievable level of detail, ensuring continuity and precision throughout the entire Revit model.
The final deliverables included a fully coordinated Revit BIM model of the church, incorporating internal architecture, major structural components, roof structures, and the full drainage system. This complete and accurate dataset provided the client and design team with a dependable foundation for the building’s renovation and interior repurposing works.
Survey2Plan provides precise, tech-driven surveying solutions tailored to meet unique project needs with efficiency and expertise.
0161 531 6641
(Prefer a quick chat? Call us now!)
info@survey2plan.co.uk
(Send us an email and we’ll get back to you.)
Bartle House Oxford Court, Manchester M2 3WQ
Privacy Policy | Copyright © 2026 Survey2Plan.