
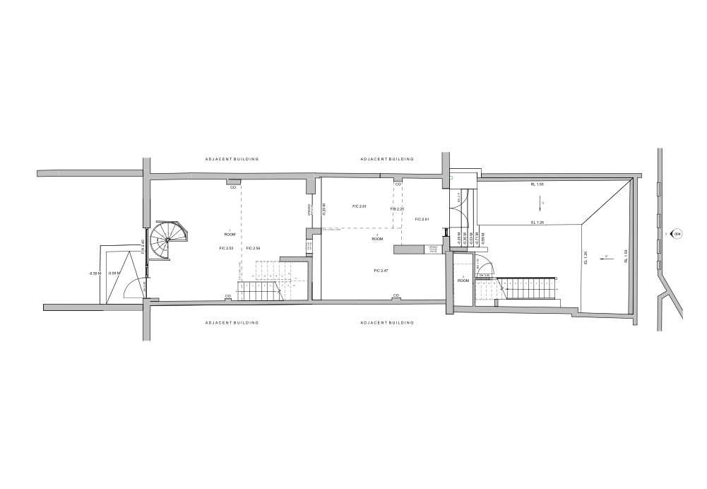
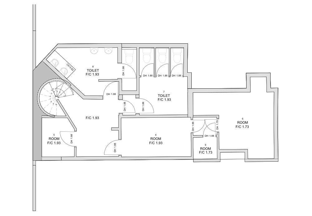
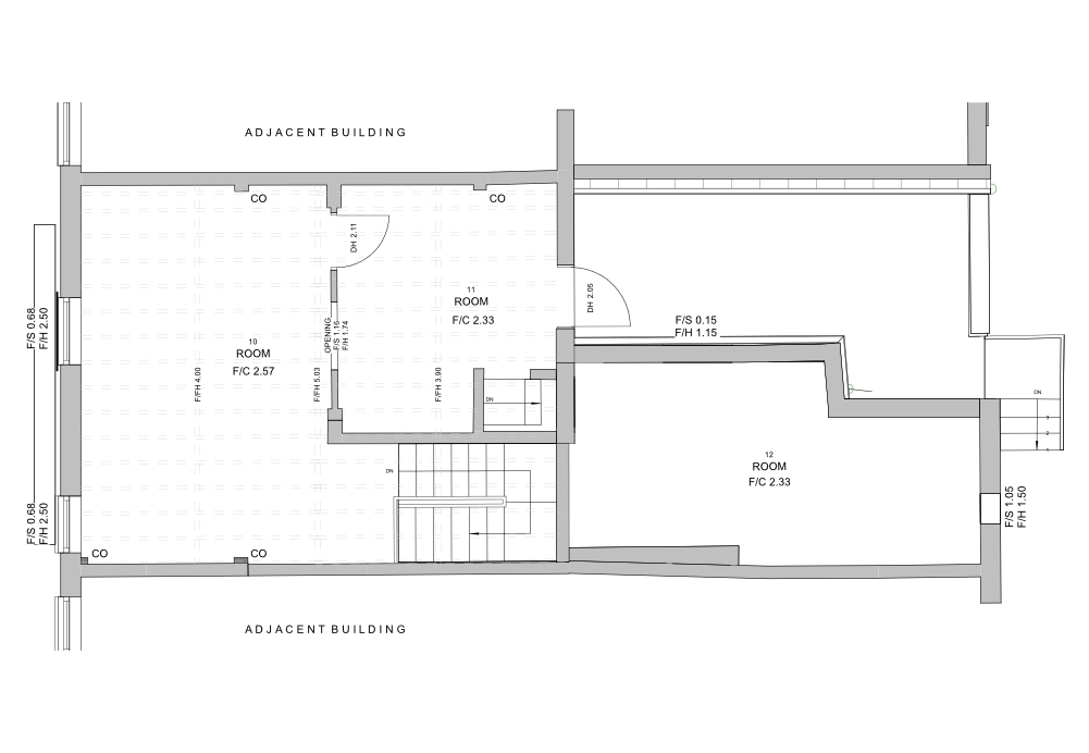
The survey included the production of full floor plans and elevations, documenting all relevant architectural details such as loft components, rear-facing windows, and key structural elements. These details were essential for understanding the existing geometry of the property and enabling the design team to plan modifications confidently and accurately.
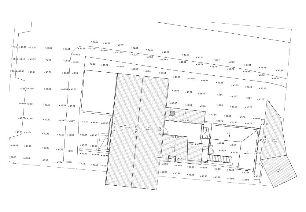
A complete topographical survey of both the front and rear yards was conducted and integrated into the measured building data. This information provided the client with critical grading and level reference points, ensuring that the proposed backyard extension aligned correctly within the broader site context.
Loft access was restricted due to limited entry and insufficient lighting, preventing full laser scanning of the space. To overcome this, the team used manual measurement techniques to document and model the loft area accurately. This allowed the Revit model to remain cohesive and complete, despite the on-site challenges.
The final deliverables supplied to the client included:
• Detailed floor plans
• Elevations
• Loft documentation
• A full site topography survey
Together, these outputs provided a reliable and precise dataset to support the renovation and extension design phases.
Survey2Plan provides precise, tech-driven surveying solutions tailored to meet unique project needs with efficiency and expertise.
0161 531 6641
(Prefer a quick chat? Call us now!)
info@survey2plan.co.uk
(Send us an email and we’ll get back to you.)
Bartle House Oxford Court, Manchester M2 3WQ
Privacy Policy | Copyright © 2026 Survey2Plan.