
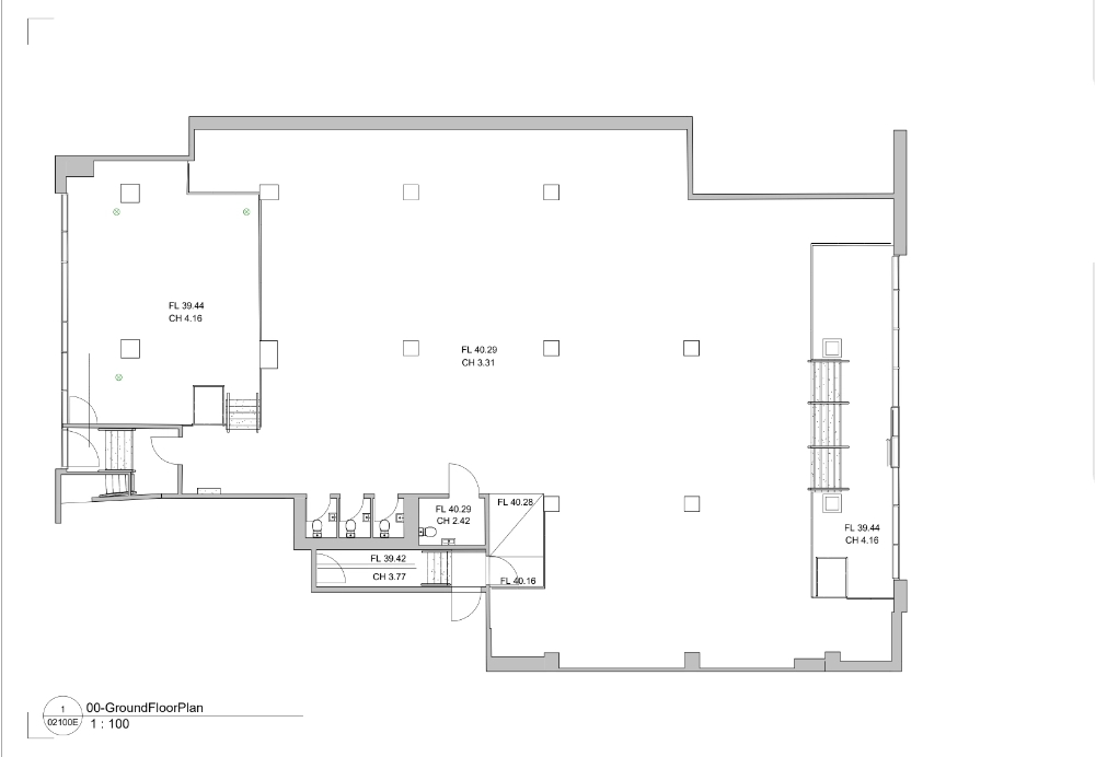
The measured survey focused on documenting all architectural and structural elements, including walls, columns, slabs, and service areas. Each component was captured to reflect existing site conditions accurately, ensuring the model provided a dependable foundation for future planning and technical evaluations.
A detailed MEP and ceiling survey was carried out to map mechanical and plumbing systems with high accuracy. The modelling process included documenting coordinated routes, spatial constraints, and service zones. The distinctive waffled ceiling was modelled carefully to represent its depth, geometry, and grid pattern, ensuring all structural and service elements aligned seamlessly within the Revit environment.
The final deliverables consisted of complete architectural, structural, and MEP floor plans, along with a detailed 3D Revit model of the ground floor. This comprehensive dataset equipped the client with reliable information for design coordination, technical analysis, and the continued development of their project documentation.
Survey2Plan provides precise, tech-driven surveying solutions tailored to meet unique project needs with efficiency and expertise.
0161 531 6641
(Prefer a quick chat? Call us now!)
info@survey2plan.co.uk
(Send us an email and we’ll get back to you.)
Bartle House Oxford Court, Manchester M2 3WQ
Privacy Policy | Copyright © 2026 Survey2Plan.